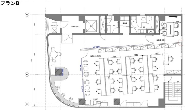
こちらの物件は会議室什器付きのセットアップオフィスです。会議室やフォンブースの追加設置のご相談も可能となっており、来客・打合せ等の多い企業様におすすめの物件になっております。眺望も大変よく、気持ちを落ち着かせてくれます!活気あるビジネスエリアの中心に位置し、周囲には多くの企業が集まっています。交流の機会が増えるだけでなく、パートナーやクライアントを招待する際にも、信頼感のあるエリアとして高く評価されています。近隣には緑が多いためランチ時には自然を満喫しながらを食事をとることができます。また、散歩をすればリフレッシュもできそうです。




お好みの居抜きオフィスが見つからなかった方はこちらから
リクエストをお送りください。
希望の条件からおすすめの居抜きオフィスをご紹介します。
居抜き物件としてINUKIT!に登録しておくと、原状回復費用をグッと抑えることが可能です。
まだ移転の時期でなくても、早期登録しておけば、移転のタイミングで借り手がすぐに見つかる可能性が高くなります。
ぜひ、あなたのオフィスを居抜き物件として登録してください!
物件に関するご質問はお気軽にご相談ください。
平日9:00~18:00