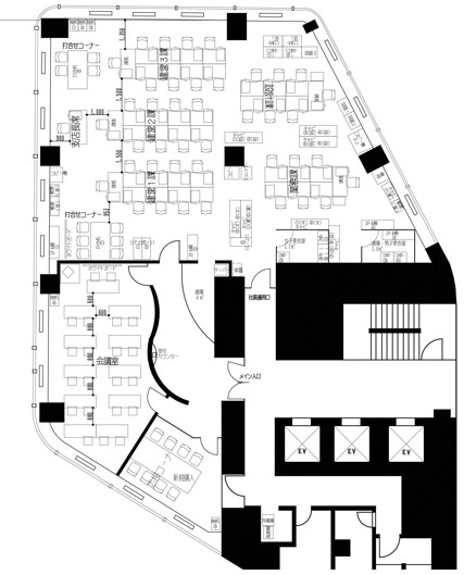
複数路線利用可能なターミナル駅3分の為、アクセス抜群です。大通り面しており車付けも良く近隣にホテルもあり駅至近でありながら緑あふれる環境です。外観はシルバーパネルとガラス張りのビルで大通りに面す為、非情に目立つビルです。内装は会議室20名用1室に社内ミーテング6名用打合せコーナー1室8名応接1室の居抜きオフィスです。10階の為、眺望が良く、非常に明るいオフィスです。エレベーター3基ある為、待ち時間が削減出来ます。再開発計画がある為、2024年3月末迄の定期建物賃貸借契約となります。


お好みの居抜きオフィスが見つからなかった方はこちらから
リクエストをお送りください。
希望の条件からおすすめの居抜きオフィスをご紹介します。
居抜き物件としてINUKIT!に登録しておくと、原状回復費用をグッと抑えることが可能です。
まだ移転の時期でなくても、早期登録しておけば、移転のタイミングで借り手がすぐに見つかる可能性が高くなります。
ぜひ、あなたのオフィスを居抜き物件として登録してください!
物件に関するご質問はお気軽にご相談ください。
平日9:00~18:00