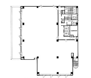
こちらのセットアップオフィスは、複数路線利用可能なアクセス良好なオフィスビルです。大型区画且つ共用部は室外に集中した造りとなっておりますので、広々とお使いいただけます。またエレベータは2基完備しているので、上下階の移動もスムーズでストレスフリーでご利用可能です。セキュリティーも機械警備で管理されており、24時間安心してご利用いただけます。新橋エリアで大型区画をお探しの方はぜひお問合せください。※写真は共用部の写真となります。


お好みの居抜きオフィスが見つからなかった方はこちらから
リクエストをお送りください。
希望の条件からおすすめの居抜きオフィスをご紹介します。
居抜き物件としてINUKIT!に登録しておくと、原状回復費用をグッと抑えることが可能です。
まだ移転の時期でなくても、早期登録しておけば、移転のタイミングで借り手がすぐに見つかる可能性が高くなります。
ぜひ、あなたのオフィスを居抜き物件として登録してください!
物件に関するご質問はお気軽にご相談ください。
平日9:00~18:00