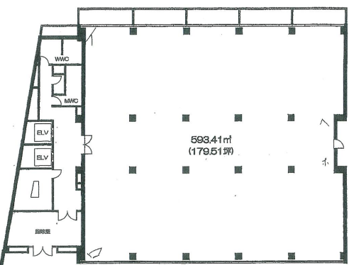
こちらの物件は東京都港区西麻布の居抜きオフィスになります。大通りから1歩離れたところにある為、集中して働けそうです。ガラス張りの外観が存在感を演出します。快適性が備わった理想的なオフィス環境となっており、近隣にはコンビニを始め、多彩な飲食店が立ち並び、ランチやミーティングにも便利です。西麻布という立地を活かしたビジネスのつながりに期待ができそうですので、ビジネスの拠点として最適な場所を提供できると思います。




お好みの居抜きオフィスが見つからなかった方はこちらから
リクエストをお送りください。
希望の条件からおすすめの居抜きオフィスをご紹介します。
居抜き物件としてINUKIT!に登録しておくと、原状回復費用をグッと抑えることが可能です。
まだ移転の時期でなくても、早期登録しておけば、移転のタイミングで借り手がすぐに見つかる可能性が高くなります。
ぜひ、あなたのオフィスを居抜き物件として登録してください!
物件に関するご質問はお気軽にご相談ください。
平日9:00~18:00