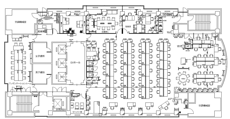
虎ノ門エリアに位置する貴重な大型居抜きオフィスのご紹介です。日中は活発なビジネスエリアとしての顔を見せ、夜は静けさに包まれた穏やかな空気が共存するバランスの取れたオフィス。事務所の入り口から控えめに心を和ませるような緑の存在感が穏やかさを演出させ、ブランドイメージを高める効果も期待できます。
打ち合わせに使用するスペースや個室、役員室も完備したオフィス。什器付きでのお渡しもご相談可能です◎

お好みの居抜きオフィスが見つからなかった方はこちらから
リクエストをお送りください。
希望の条件からおすすめの居抜きオフィスをご紹介します。
居抜き物件としてINUKIT!に登録しておくと、原状回復費用をグッと抑えることが可能です。
まだ移転の時期でなくても、早期登録しておけば、移転のタイミングで借り手がすぐに見つかる可能性が高くなります。
ぜひ、あなたのオフィスを居抜き物件として登録してください!
物件に関するご質問はお気軽にご相談ください。
平日9:00~18:00