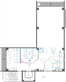
内装・共用部ともにフルリフォームおよびバリューアップが施された本物件は、落ち着いたベージュ基調の空間と、白を基調とした什器が調和する、洗練されたセットアップオフィスです。執務室に加え、受付、ラウンジ、会議室、テレカンブースなど、ビジネスに必要な機能を完備しています。男女別の木目調トイレや、開放感あるバルコニーも備え、快適なワークプレイスを実現しています。虎ノ門エリアでセットアップオフィスをお探しの方はぜひご検討ください。



お好みの居抜きオフィスが見つからなかった方はこちらから
リクエストをお送りください。
希望の条件からおすすめの居抜きオフィスをご紹介します。
居抜き物件としてINUKIT!に登録しておくと、原状回復費用をグッと抑えることが可能です。
まだ移転の時期でなくても、早期登録しておけば、移転のタイミングで借り手がすぐに見つかる可能性が高くなります。
ぜひ、あなたのオフィスを居抜き物件として登録してください!
物件に関するご質問はお気軽にご相談ください。
平日9:00~18:00