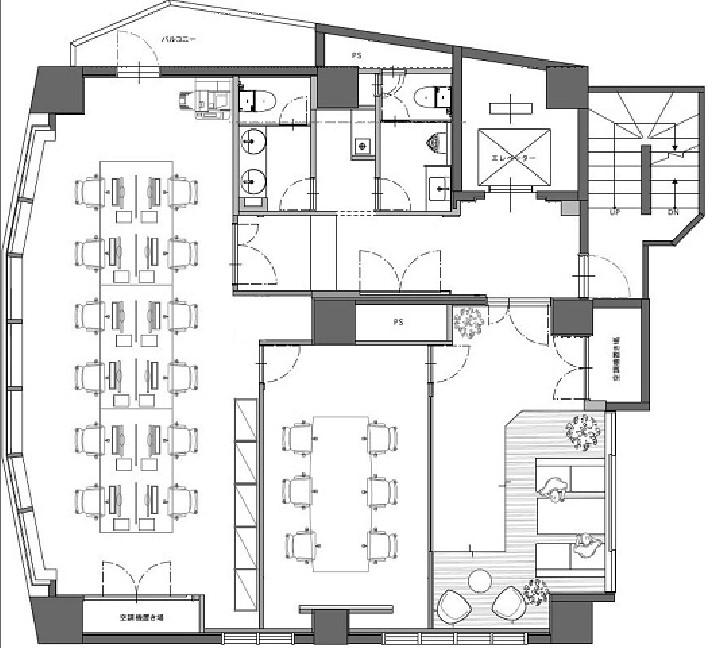
都営大江戸線赤羽橋駅徒歩5分、桜田通りに面し、東京タワー至近のセットアップオフィスです。東京タワー周辺は芝公園も近くにあり緑の多いエリアで落ち着いた環境で仕事が出来ます。貸室内は想定レイアウト6名用会議室、想定レイアウト12名用執務室、ミーティングスペース3部屋を一部ガラス張りパーテーションで間仕切られており室内に光が差し込む明るいオフィスです。貸室内タイルカーペットはグレーの高級感あるカーペットを使用しております。天井は一部スケルトン仕上げになっており最新のおしゃれなオフィスに仕上がっております。また、室外男女別トイレ・給湯室は最新設備にリニューアル済みの為、まるで新築ビルに入居している様です。



お好みの居抜きオフィスが見つからなかった方はこちらから
リクエストをお送りください。
希望の条件からおすすめの居抜きオフィスをご紹介します。
居抜き物件としてINUKIT!に登録しておくと、原状回復費用をグッと抑えることが可能です。
まだ移転の時期でなくても、早期登録しておけば、移転のタイミングで借り手がすぐに見つかる可能性が高くなります。
ぜひ、あなたのオフィスを居抜き物件として登録してください!
物件に関するご質問はお気軽にご相談ください。
平日9:00~18:00