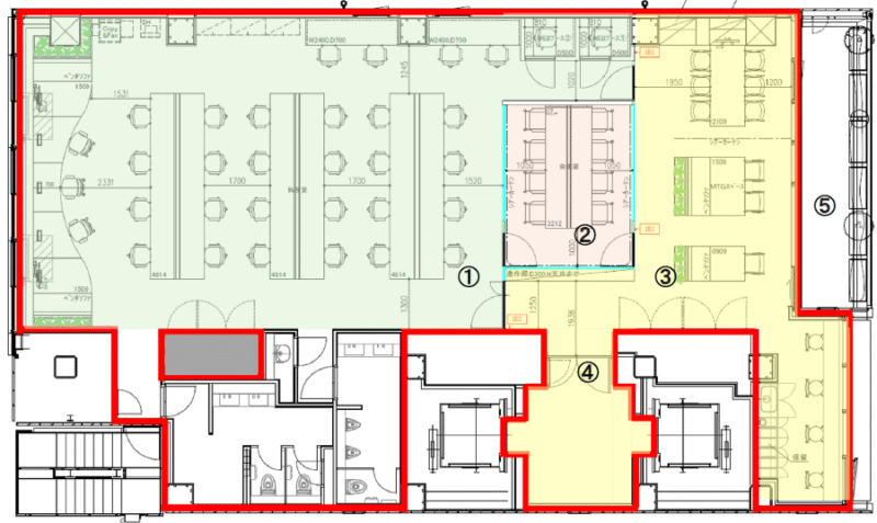
東京都港区エリアに新しく建設されるセットアップオフィスです。ビジネスの中心地に位置し、アクセスの良さが魅力。オフィスは洗練されたデザインで使いやすいレイアウトが整っています。会議室や設備も充実しており、快適なワークスペースを提供。周辺には飲食店や商業施設も多く、利便性の高い環境です。




お好みの居抜きオフィスが見つからなかった方はこちらから
リクエストをお送りください。
希望の条件からおすすめの居抜きオフィスをご紹介します。
居抜き物件としてINUKIT!に登録しておくと、原状回復費用をグッと抑えることが可能です。
まだ移転の時期でなくても、早期登録しておけば、移転のタイミングで借り手がすぐに見つかる可能性が高くなります。
ぜひ、あなたのオフィスを居抜き物件として登録してください!
物件に関するご質問はお気軽にご相談ください。
平日9:00~18:00