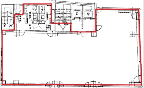
最寄り駅から徒歩6分、視認性の高い大通りに面した好立地の居抜きオフィスのご紹介です。室内は3面に開口部を設け、自然光がたっぷり差し込む開放的な環境です。30~45名程度の利用に適した広さで、受付スペースや、チームの用途に応じて使い分け可能な大会議室・小会議室、リフレッシュに最適な休憩スペース、給湯室も設けられており、働きやすさに配慮したオフィス環境が整っています。機能面ではフリーアクセスフロア、個別空調、男女別トイレを完備しています。警備は機械によるセキュリティ体制です。近隣には植物園があり、緑豊かな自然を感じながら働ける点も魅力です。白金台エリアで居抜きオフィスをお探しの方はぜひご検討ください。



お好みの居抜きオフィスが見つからなかった方はこちらから
リクエストをお送りください。
希望の条件からおすすめの居抜きオフィスをご紹介します。
居抜き物件としてINUKIT!に登録しておくと、原状回復費用をグッと抑えることが可能です。
まだ移転の時期でなくても、早期登録しておけば、移転のタイミングで借り手がすぐに見つかる可能性が高くなります。
ぜひ、あなたのオフィスを居抜き物件として登録してください!
物件に関するご質問はお気軽にご相談ください。
平日9:00~18:00