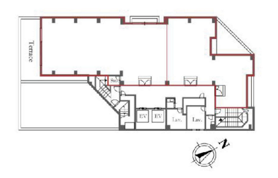
東京都港区に位置する居抜き物件。青山エリアならではの上品で落ち着いた雰囲気が漂い、周辺には高級ブランドショップや洗練されたカフェが立ち並びます。ビジネスの拠点としても魅力的で、感度の高い客層の集客が期待できます。駅からのアクセスも良好で、利便性とステータスを兼ね備えた立地。南青山の洗練された空気の中で理想のビジネス環境が手に入るチャンスです。



お好みの居抜きオフィスが見つからなかった方はこちらから
リクエストをお送りください。
希望の条件からおすすめの居抜きオフィスをご紹介します。
居抜き物件としてINUKIT!に登録しておくと、原状回復費用をグッと抑えることが可能です。
まだ移転の時期でなくても、早期登録しておけば、移転のタイミングで借り手がすぐに見つかる可能性が高くなります。
ぜひ、あなたのオフィスを居抜き物件として登録してください!
物件に関するご質問はお気軽にご相談ください。
平日9:00~18:00