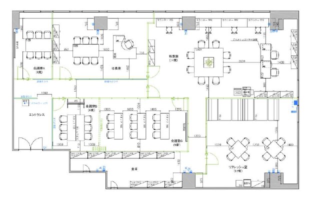
東京都港区にある居抜き物件は、ビジネスや生活の拠点として最適な場所です。最寄り駅は徒歩圏内で、都内外へのアクセスが非常に便利で、多方面への移動がスムーズです。また、周辺にはオフィス街や飲食店、商業施設が充実しており、ランチや買い物にも便利な環境が整っています。この物件は居抜きのため、初期費用を抑えつつスムーズにビジネスを始められるのが魅力です。




お好みの居抜きオフィスが見つからなかった方はこちらから
リクエストをお送りください。
希望の条件からおすすめの居抜きオフィスをご紹介します。
居抜き物件としてINUKIT!に登録しておくと、原状回復費用をグッと抑えることが可能です。
まだ移転の時期でなくても、早期登録しておけば、移転のタイミングで借り手がすぐに見つかる可能性が高くなります。
ぜひ、あなたのオフィスを居抜き物件として登録してください!
物件に関するご質問はお気軽にご相談ください。
平日9:00~18:00