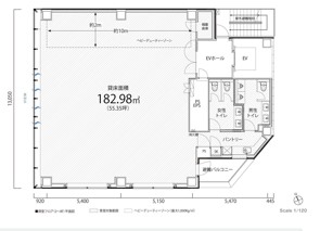
此方の物件は6駅5路線が利用可能。快適なアクセスが魅力的です。大通り沿いに面しているため、視認性も高いです。特徴のあるガラス張りの外観が存在感を演出します。無柱空間で天高が2.5m以上あるため開放感があります。貸室内は個別空調で、機械警備のためセキュリティーもばっちりです。近隣にコンビニを始めドラックストアや銀行、郵便局があり、周辺環境は良好です。


お好みの居抜きオフィスが見つからなかった方はこちらから
リクエストをお送りください。
希望の条件からおすすめの居抜きオフィスをご紹介します。
居抜き物件としてINUKIT!に登録しておくと、原状回復費用をグッと抑えることが可能です。
まだ移転の時期でなくても、早期登録しておけば、移転のタイミングで借り手がすぐに見つかる可能性が高くなります。
ぜひ、あなたのオフィスを居抜き物件として登録してください!
物件に関するご質問はお気軽にご相談ください。
平日9:00~18:00