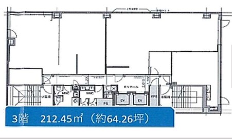
こちらの居抜きビルは最寄り駅より徒歩1分でアクセスが可能です。窓面の広いデザイン性のある外観が目を引きます。管理が行き届いた清潔感があるエントランスが好印象◎ワンフロア約64坪で、間取りは柱のないシンプルな造りのため、レイアウトは自由自在です。男女別トイレ、OAフロア、個別空調、機械式駐車場がが備わっています。日比谷通り近くにあり、周辺には郵便局やカフェ、コンビニなどが徒歩圏内の便利な立地です。田町エリアで居抜きオフィスをお探しの方はぜひご検討ください。




お好みの居抜きオフィスが見つからなかった方はこちらから
リクエストをお送りください。
希望の条件からおすすめの居抜きオフィスをご紹介します。
居抜き物件としてINUKIT!に登録しておくと、原状回復費用をグッと抑えることが可能です。
まだ移転の時期でなくても、早期登録しておけば、移転のタイミングで借り手がすぐに見つかる可能性が高くなります。
ぜひ、あなたのオフィスを居抜き物件として登録してください!
物件に関するご質問はお気軽にご相談ください。
平日9:00~18:00