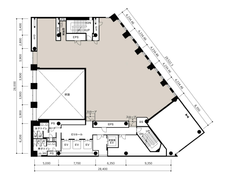
こちらの物件は、新橋エリアに位置するセットアップオフィスです。複数路線利用可能なアクセス良好な場所にあります。オフィスフロアには大小合わせ4部屋のミーティングルームが備わっています。また、倉庫もあります。このビルは、石造りの綺麗な外観が特徴的で、ヨーロッパの街並みを再現した仕様になっています。エントランスホールは、優しい色合いで光を取り込む大きな窓があり、2階まで吹き抜ける大空間となっています。新橋エリアでセットアップオフィスをお探しの方には、おすすめです。



お好みの居抜きオフィスが見つからなかった方はこちらから
リクエストをお送りください。
希望の条件からおすすめの居抜きオフィスをご紹介します。
居抜き物件としてINUKIT!に登録しておくと、原状回復費用をグッと抑えることが可能です。
まだ移転の時期でなくても、早期登録しておけば、移転のタイミングで借り手がすぐに見つかる可能性が高くなります。
ぜひ、あなたのオフィスを居抜き物件として登録してください!
物件に関するご質問はお気軽にご相談ください。
平日9:00~18:00