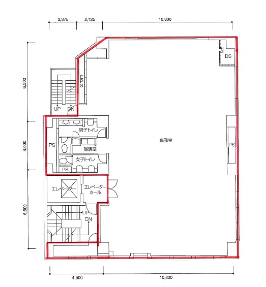
こちらの居抜オフィス は、東京メトロ日比谷線・都営大江戸線をご利用でき、六本木通りに面する1Fにドコモショップが入っているガラス張りの高級感あるオフィスビルとなります。なお、駅前には飲食店やデイリーヤマザキといったコンビニもある為、ランチ時も安心の立地です。
室内は30席ほどのデスクが置けるスペースに加え、6-8名用の会議室が計4つある為、来社の多いお客様や人材派遣系のお客様に特にお勧めの物件となります。




お好みの居抜きオフィスが見つからなかった方はこちらから
リクエストをお送りください。
希望の条件からおすすめの居抜きオフィスをご紹介します。
居抜き物件としてINUKIT!に登録しておくと、原状回復費用をグッと抑えることが可能です。
まだ移転の時期でなくても、早期登録しておけば、移転のタイミングで借り手がすぐに見つかる可能性が高くなります。
ぜひ、あなたのオフィスを居抜き物件として登録してください!
物件に関するご質問はお気軽にご相談ください。
平日9:00~18:00