【青山・表参道エリア】幅広いレイアウトが出来る居抜きオフィス

内装写真
VR
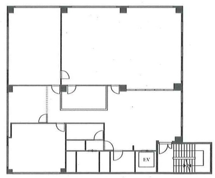
間取り図
地図
 
閲覧には会員登録が必要です
無料の会員登録ですぐにご覧になれます
 
閲覧には会員登録が必要です
無料の会員登録ですぐにご覧になれます
エリア
東京都港区
最寄り駅
銀座線 表参道駅徒歩6分
千代田線 表参道駅徒歩6分
半蔵門線 表参道駅徒歩6分
副都心線 渋谷駅徒歩16分
坪数帯
70~80坪

物件説明

駅から近く周辺には人が多くいて賑やかですが大通りから一本裏に入るため静かで仕事に集中できる環境です。
貸室内は間仕切りにより部屋がいくつにも分かれているため会議室、応接室等様々な部屋を設置することが可能になります。
周辺にはカフェや飲食店も多くあるため仕事中に気分転換に少し行ったりすることも出来ます。飲食店も多くあるためお昼のランチには困らない立地です。近くには大学もあり若い人が多くいるため活気が溢れております。

物件詳細情報

物件NoA-001113
住所東京都港区
坪数帯70~80坪
推奨人数30~40人
募集期間募集終了
坪単価-
竣工年-
賃料-
共益費-
敷金-
会員限定で物件詳細を公開中
ログイン 新規会員登録

設備・条件

物件リクエスト

お好みの居抜きオフィスが見つからなかった方はこちらから
リクエストをお送りください。
希望の条件からおすすめの居抜きオフィスをご紹介します。

居抜きオフィスを検索

該当件数

移転する予定がなくてもOK 今のオフィスを物件登録しませんか?

居抜き物件としてINUKIT!に登録しておくと、原状回復費用をグッと抑えることが可能です。
まだ移転の時期でなくても、早期登録しておけば、移転のタイミングで借り手がすぐに見つかる可能性が高くなります。
ぜひ、あなたのオフィスを居抜き物件として登録してください!

CONTACT

物件に関するご質問はお気軽にご相談ください。

お電話でのお問い合わせはこちら
0120-997-260

平日9:00~18:00

メールでのお問い合わせはこちら
お問い合わせフォーム