【目黒駅西口エリア】目黒川沿いの扇型の居抜きオフィス

内装写真
VR
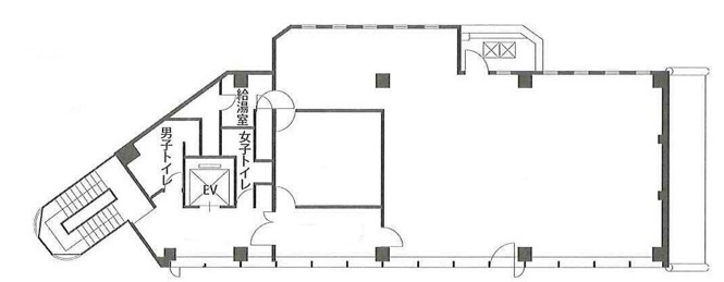
間取り図
地図
 
閲覧には会員登録が必要です
無料の会員登録ですぐにご覧になれます
 
閲覧には会員登録が必要です
無料の会員登録ですぐにご覧になれます
エリア
東京都目黒区
最寄り駅
山手線 目黒駅徒歩7分
東急目黒線 目黒駅徒歩7分
南北線 目黒駅徒歩7分
坪数帯
40~50坪

物件説明

建物の外観はガラス張りのカーテンウォールになっており扇形になっているため他のビルより探しやすいです。目黒通りから一本入ったところにあるので交通の便は良いが静かな場所にあります。目黒川沿いにあるため春は桜が綺麗なのではないかと思います。目黒駅の近くに行けば多くの飲食店が存在するためお昼のランチや夜の会食には困らないのではないかと思います。貸室は1フロア1テナントのため他の会社の人など部外者が入ってこないので治安は良いビルです。会議室は壁がホワイトボードになっているため使い勝手が良いです。

物件詳細情報

物件NoA-000222
住所東京都目黒区
坪数帯40~50坪
推奨人数20~30人
募集期間募集終了
坪単価-
竣工年-
賃料-
共益費-
敷金-
会員限定で物件詳細を公開中
ログイン 新規会員登録

設備・条件

物件リクエスト

お好みの居抜きオフィスが見つからなかった方はこちらから
リクエストをお送りください。
希望の条件からおすすめの居抜きオフィスをご紹介します。

居抜きオフィスを検索

該当件数

移転する予定がなくてもOK 今のオフィスを物件登録しませんか?

居抜き物件としてINUKIT!に登録しておくと、原状回復費用をグッと抑えることが可能です。
まだ移転の時期でなくても、早期登録しておけば、移転のタイミングで借り手がすぐに見つかる可能性が高くなります。
ぜひ、あなたのオフィスを居抜き物件として登録してください!

CONTACT

物件に関するご質問はお気軽にご相談ください。

お電話でのお問い合わせはこちら
0120-997-260

平日9:00~18:00

メールでのお問い合わせはこちら
お問い合わせフォーム