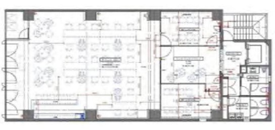
江戸通りから入ったところにあり閑静な場所にございます。ビルエントランス横の101号室はガラス張りでラウンジが見えて視認性が良いです。1階の共用部は片面が鏡張りで照明が工夫されておりオシャレな雰囲気があります。2階貸室はテーブルとソファがあってグレーやブラック、ホワイトを基調としており落ち着いた上品な雰囲気があり仕事がしやすい空間となっております。会議室は2つあるので急な打合せがあっても対応できて利用しやすいです。窓は南向きで採光も取れます。



お好みの居抜きオフィスが見つからなかった方はこちらから
リクエストをお送りください。
希望の条件からおすすめの居抜きオフィスをご紹介します。
居抜き物件としてINUKIT!に登録しておくと、原状回復費用をグッと抑えることが可能です。
まだ移転の時期でなくても、早期登録しておけば、移転のタイミングで借り手がすぐに見つかる可能性が高くなります。
ぜひ、あなたのオフィスを居抜き物件として登録してください!
物件に関するご質問はお気軽にご相談ください。
平日9:00~18:00