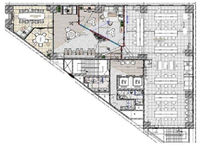
本物件は東日本橋エリアのセットアップオフィスです。周辺には郵便局や銀行、飲食店も多数あるのでランチには困りません。ビルの外観・貸室内といたしましては、2019年大規模リニューアルによりエントランス・貸室内がラグジュアリーな空間になっており従業員の方はもちろんのこと来客の方にもご好評頂けるかと思います。1フロア1テナントで、設備としましては個別空調、機械警備、エレベーター2基、室内に専用の男女別トイレと、給湯設備を完備しており24時間入退館可能です。竣工は1986年1月で新耐震基準をクリアしています。



お好みの居抜きオフィスが見つからなかった方はこちらから
リクエストをお送りください。
希望の条件からおすすめの居抜きオフィスをご紹介します。
居抜き物件としてINUKIT!に登録しておくと、原状回復費用をグッと抑えることが可能です。
まだ移転の時期でなくても、早期登録しておけば、移転のタイミングで借り手がすぐに見つかる可能性が高くなります。
ぜひ、あなたのオフィスを居抜き物件として登録してください!
物件に関するご質問はお気軽にご相談ください。
平日9:00~18:00