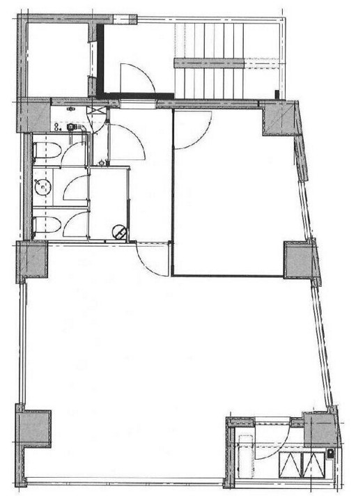
こちらのビルは、2021年竣工の新耐震基準を満たした物件です。地上7階建ての賃貸オフィス物件で、貸室内がミーティングルームやリフレッシュスペースとして活用できるように区切られています!ガラスパーテションを採用しているため、明るく広がりを感じられる空間です。トイレはコンパクトながら男女別です。最寄り駅は八丁堀駅まで徒歩2分、茅場町駅まで徒歩6分と好アクセスです。周辺は亀島川や隅田川が流れており、公園もあるので落ち着いた環境で、飲食店やコンビニ、駅方面には金融機関もあるので、食事や業務での外出にも便利な好立地です




お好みの居抜きオフィスが見つからなかった方はこちらから
リクエストをお送りください。
希望の条件からおすすめの居抜きオフィスをご紹介します。
居抜き物件としてINUKIT!に登録しておくと、原状回復費用をグッと抑えることが可能です。
まだ移転の時期でなくても、早期登録しておけば、移転のタイミングで借り手がすぐに見つかる可能性が高くなります。
ぜひ、あなたのオフィスを居抜き物件として登録してください!
物件に関するご質問はお気軽にご相談ください。
平日9:00~18:00