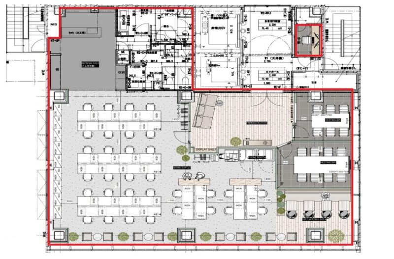
こちらのセットアップオフィスは、最寄り駅から徒歩4分で複数路線利用可能なオフィスビルです。貸室内はラグジュアリーな内装で、天高2.8mで開放感ある空間です。会議室は6名用と8名用と2室完備されており、用途によって使い分け可能です。さらにテレカンブースも2室付いており、会話等が聞かれる心配もありません。ビルの設備としては、共用部に防犯カメラの設置やタッチパネルディスプレイにより来訪者の確認もでき、セキュリティもしっかり完備されています。さらにコミュニケーションやリフレッシュの場として活用できる屋上庭園も付いております。


お好みの居抜きオフィスが見つからなかった方はこちらから
リクエストをお送りください。
希望の条件からおすすめの居抜きオフィスをご紹介します。
居抜き物件としてINUKIT!に登録しておくと、原状回復費用をグッと抑えることが可能です。
まだ移転の時期でなくても、早期登録しておけば、移転のタイミングで借り手がすぐに見つかる可能性が高くなります。
ぜひ、あなたのオフィスを居抜き物件として登録してください!
物件に関するご質問はお気軽にご相談ください。
平日9:00~18:00