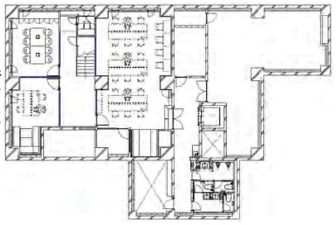
浅草橋近くの靖国通り沿いに面する好立地物件!窓面が多く、インパクトのある高級感あふれる外観をしていて目を引く造りとなっております。1F-B1のメゾネットタイプとなっている物件なのですが、ガラスや白を基調としたデザインで作られていて天井が高いので地下の圧迫感を感じさせない開放的な造りとなっています。またグリーン(観葉植物)を多く利用しているのも開放的な印象を演出しています。リラックス出来るさわやかなオフィスです。




お好みの居抜きオフィスが見つからなかった方はこちらから
リクエストをお送りください。
希望の条件からおすすめの居抜きオフィスをご紹介します。
居抜き物件としてINUKIT!に登録しておくと、原状回復費用をグッと抑えることが可能です。
まだ移転の時期でなくても、早期登録しておけば、移転のタイミングで借り手がすぐに見つかる可能性が高くなります。
ぜひ、あなたのオフィスを居抜き物件として登録してください!
物件に関するご質問はお気軽にご相談ください。
平日9:00~18:00