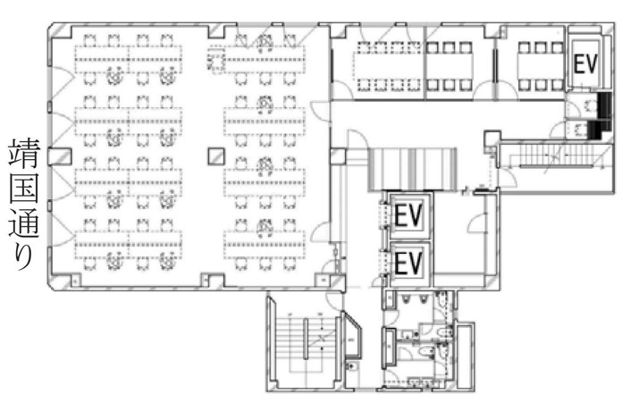
JR総武線各駅停車、「浅草橋」西口駅徒歩5分、都営浅草線「浅草橋」駅徒歩5分、JR総武快速「馬喰町駅」徒歩3分、靖国通り沿いのフルリノベーションを行ったセットアップオフィス。総武線で千葉方面、秋葉原から京浜東北線で埼玉方面、総武快速で神奈川方面にもアクセスが可能な交通利便性が高く採用にも強い好立地物件。外観とエントランスには白を基調とした清潔感のあるタイルを使用し上品で高級感のある印象を与えます。ラウンジスペースがあり簡単な打ち合わせは勿論、社内のミーティング、コミュニケーションスペースとして使用可能。大切な打ち合わせはガラスパーテーションで区切られた会議室で行えます。6名用が2室と8名用が1室の計3室設置済です。




お好みの居抜きオフィスが見つからなかった方はこちらから
リクエストをお送りください。
希望の条件からおすすめの居抜きオフィスをご紹介します。
居抜き物件としてINUKIT!に登録しておくと、原状回復費用をグッと抑えることが可能です。
まだ移転の時期でなくても、早期登録しておけば、移転のタイミングで借り手がすぐに見つかる可能性が高くなります。
ぜひ、あなたのオフィスを居抜き物件として登録してください!
物件に関するご質問はお気軽にご相談ください。
平日9:00~18:00