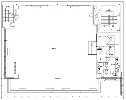
都心にありながらも静かな環境で、主要ターミナル駅へも徒歩圏内という利便性の高い立地です。室内は、小会議室2室と大会議室1室、さらに倉庫スペースを2か所備え、機能性抜群です。床はフリーアクセス仕様で配線の自由度が高く、光回線も完備。24時間利用可能で、フレキシブルな働き方にも対応します。セキュリティ面も安心の有人警備+機械警備体制です。男女別トイレや給湯室などあり、快適な執務環境が整っています。さらに耐震補強工事も実施済みで、安全面にも配慮されています。日本橋で居抜きオフィスをお探しの方はぜひご検討ください。


お好みの居抜きオフィスが見つからなかった方はこちらから
リクエストをお送りください。
希望の条件からおすすめの居抜きオフィスをご紹介します。
居抜き物件としてINUKIT!に登録しておくと、原状回復費用をグッと抑えることが可能です。
まだ移転の時期でなくても、早期登録しておけば、移転のタイミングで借り手がすぐに見つかる可能性が高くなります。
ぜひ、あなたのオフィスを居抜き物件として登録してください!
物件に関するご質問はお気軽にご相談ください。
平日9:00~18:00