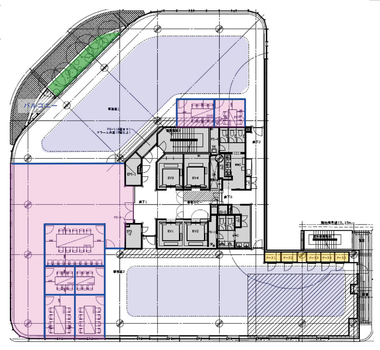
こちらの物件は東京都中央区京橋のセットアップオフィスです。最寄り駅から徒歩4分という立地です。徒歩圏内にはターミナル駅もあり、出張の多いお客様にも安心してご利用いただけます。貸室内には会議室複数やバルコニー、カフェカウンター等の設備が備わっており、充実したオフィスライフをお過ごしいただけるでしょう。別フロアにはお洒落なラウンジがついており、休憩中やリフレッシュしたい時はカフェやホテルのような雰囲気をお楽しみながら、ご利用いただけます。大きな窓から差し込む太陽の光と緑で、明るい気持ちで業務に励むことができます。



お好みの居抜きオフィスが見つからなかった方はこちらから
リクエストをお送りください。
希望の条件からおすすめの居抜きオフィスをご紹介します。
居抜き物件としてINUKIT!に登録しておくと、原状回復費用をグッと抑えることが可能です。
まだ移転の時期でなくても、早期登録しておけば、移転のタイミングで借り手がすぐに見つかる可能性が高くなります。
ぜひ、あなたのオフィスを居抜き物件として登録してください!
物件に関するご質問はお気軽にご相談ください。
平日9:00~18:00