最寄り駅から徒歩1分、複数路線利用可能な都心の好立地セットアップ物件です。
去年竣工した新築物件で、共用部もとても綺麗で清潔感溢れる物件です。
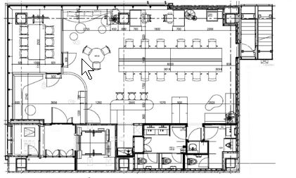
またこの坪数では希少な男女別トイレの為女性の方も安心です。
室内は窓面が大きく、採光も取れます。
緑あふれる空間となっており、都心にいながらもリラックスして仕事ができる空間です。
来客の際も好印象なビルで、会議室・打ち合わせスペースも既に設置されている為初期費用も削減可能です。


お好みの居抜きオフィスが見つからなかった方はこちらから
リクエストをお送りください。
希望の条件からおすすめの居抜きオフィスをご紹介します。
居抜き物件としてINUKIT!に登録しておくと、原状回復費用をグッと抑えることが可能です。
まだ移転の時期でなくても、早期登録しておけば、移転のタイミングで借り手がすぐに見つかる可能性が高くなります。
ぜひ、あなたのオフィスを居抜き物件として登録してください!
物件に関するご質問はお気軽にご相談ください。
平日9:00~18:00