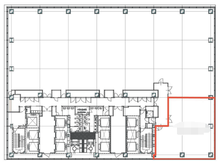
最寄り駅から徒歩1分圏内でアクセス良好な立地となっております。秋葉原駅のランドマークビルの一つで視認性抜群です。物件周辺には飲食店・コンビニ等が複数あり利便性も良いでしょう。フロア内は無柱・整形空間となっております。柱を少なくすることでデットスペースが無く、極めて有効にレイアウトが可能です。また、前面ガラス張りで、4面採光により明るく開放的な執務空間で業務を行うことが可能です。眺望も抜群で、都心を一望することができます。設備面ではエレベーター7基・個別空調・OAフロア・男女別トイレがついております。機械警備もついておりますので、セキュリティ面では安心です。ご興味ございましたら、ぜひご検討下さい!



お好みの居抜きオフィスが見つからなかった方はこちらから
リクエストをお送りください。
希望の条件からおすすめの居抜きオフィスをご紹介します。
居抜き物件としてINUKIT!に登録しておくと、原状回復費用をグッと抑えることが可能です。
まだ移転の時期でなくても、早期登録しておけば、移転のタイミングで借り手がすぐに見つかる可能性が高くなります。
ぜひ、あなたのオフィスを居抜き物件として登録してください!
物件に関するご質問はお気軽にご相談ください。
平日9:00~18:00