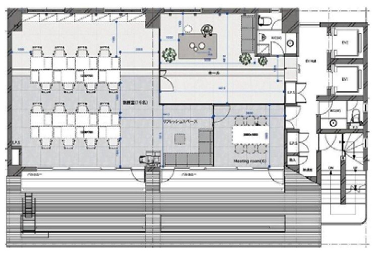
こちらのセットアップオフィスは、最寄り駅から徒歩5分で複数路線利用可能なのでアクセスの良い物件となります。室内は、洗練された上品でインパクトのある空間で、執務室は16席・会議室6名様用1室・フリースペースの設置がございます。 グレーを基調とした空間が落ち着きのあるおしゃれな雰囲気を醸し出していますね。水道橋エリアでセットアップオフィスを探されているお客様、是非お問合せください。




お好みの居抜きオフィスが見つからなかった方はこちらから
リクエストをお送りください。
希望の条件からおすすめの居抜きオフィスをご紹介します。
居抜き物件としてINUKIT!に登録しておくと、原状回復費用をグッと抑えることが可能です。
まだ移転の時期でなくても、早期登録しておけば、移転のタイミングで借り手がすぐに見つかる可能性が高くなります。
ぜひ、あなたのオフィスを居抜き物件として登録してください!
物件に関するご質問はお気軽にご相談ください。
平日9:00~18:00