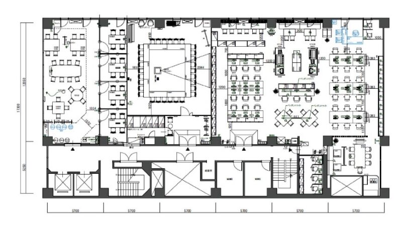
此方の物件は3駅5路線が利用可能。快適なアクセスが魅力的です。ロケーションガラス張りの外観が存在感を演出します。会議室が付いているため来客の多いお客様も安心して御利用いただけそうです。ビジネスに適した環境が整ったエリアに位置しています。近隣には、多彩な飲食店やカフェが立ち並び、ランチやミーティングにも便利です。



お好みの居抜きオフィスが見つからなかった方はこちらから
リクエストをお送りください。
希望の条件からおすすめの居抜きオフィスをご紹介します。
居抜き物件としてINUKIT!に登録しておくと、原状回復費用をグッと抑えることが可能です。
まだ移転の時期でなくても、早期登録しておけば、移転のタイミングで借り手がすぐに見つかる可能性が高くなります。
ぜひ、あなたのオフィスを居抜き物件として登録してください!
物件に関するご質問はお気軽にご相談ください。
平日9:00~18:00