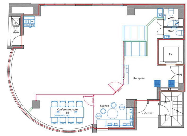
こちらの居抜きオフィスは、最寄り駅から徒歩1分で、3駅3路線から利用できます。丸みのある窓の形状が特徴的で、通りの角地にあり、視認性も良好です。外観やエントランスはグレーを基調としており、重厚感があります。窓面が広く明るい室内で快適に過ごせます。エレベーター1基、機械警備、室外男女別トイレ、OAフロア、個別空調、光ファイバーが備わっています。周辺には飲食店やコンビニがあり、ランチ環境も充実しているだけでなく、銀行やドラッグストアもあるため便利です。




お好みの居抜きオフィスが見つからなかった方はこちらから
リクエストをお送りください。
希望の条件からおすすめの居抜きオフィスをご紹介します。
居抜き物件としてINUKIT!に登録しておくと、原状回復費用をグッと抑えることが可能です。
まだ移転の時期でなくても、早期登録しておけば、移転のタイミングで借り手がすぐに見つかる可能性が高くなります。
ぜひ、あなたのオフィスを居抜き物件として登録してください!
物件に関するご質問はお気軽にご相談ください。
平日9:00~18:00