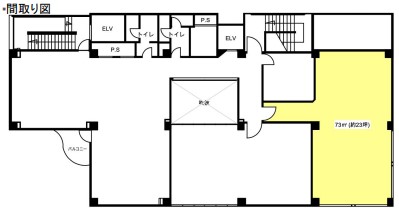
こちらの居抜きオフィスは、3駅5路線利用可能で最寄り駅からも徒歩10分圏内のため快適なアクセスが魅力的です。外観は、白いタイルを基調としており洗練された雰囲気を演出します。大通りから一本入った閑静な通り沿いに位置しているため、都心にいながらも落ち着いた環境で働けそうです!貸室内は、20坪前後とコンパクトサイズでありながらも男女別トイレなのも嬉しいポイントです。




お好みの居抜きオフィスが見つからなかった方はこちらから
リクエストをお送りください。
希望の条件からおすすめの居抜きオフィスをご紹介します。
居抜き物件としてINUKIT!に登録しておくと、原状回復費用をグッと抑えることが可能です。
まだ移転の時期でなくても、早期登録しておけば、移転のタイミングで借り手がすぐに見つかる可能性が高くなります。
ぜひ、あなたのオフィスを居抜き物件として登録してください!
物件に関するご質問はお気軽にご相談ください。
平日9:00~18:00