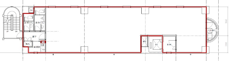
こちらのセットアップオフィス は、複数路線利用可能な 最寄り駅から徒歩5分圏内でアクセス良好な立地となっております。天井高が2500mm以上ですので広々とした解放感のあるオフィス内です。6席の会議室が設けられており、その他にはミーティングスペースやソロワーキングスペースなどご使用のお客様によってレイアウトをカスタマイズできるようなセットアップオフィスとなっております。商談や打合せ、リモート会議などお客様のニーズに合わせることが可能です。ワンフロアワンテナントの物件です。設備としては、トイレが男女別であり、OAフロア、個別空調で、新耐震基準のセットアップオフィスです。



お好みの居抜きオフィスが見つからなかった方はこちらから
リクエストをお送りください。
希望の条件からおすすめの居抜きオフィスをご紹介します。
居抜き物件としてINUKIT!に登録しておくと、原状回復費用をグッと抑えることが可能です。
まだ移転の時期でなくても、早期登録しておけば、移転のタイミングで借り手がすぐに見つかる可能性が高くなります。
ぜひ、あなたのオフィスを居抜き物件として登録してください!
物件に関するご質問はお気軽にご相談ください。
平日9:00~18:00