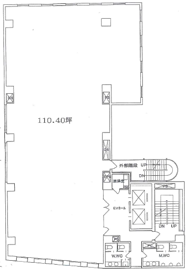
こちらは複数駅・複数路線利用可能なアクセス良好なオフィスビルです。JR線はもちろん、地下鉄もご利用頂けるので、外出や来社が多い企業様にもおすすめですよ。外観は白を基調としており、落ち着いた雰囲気です。大通りに面した立地で視認性もよく、来訪者様にも説明がしやすいです。こちらの区画はワンフロアワンテナントで、室外に男女別トイレがあるため、使い勝手が良いですよ。居抜きはロビーや執務室、応接室、多目的室、相談ブース2室があり打合せスペースも複数あります。その他、物品庫、書庫、更衣室2室、金庫室、機械室などもございますので、様々な使い方ができそうですね。



お好みの居抜きオフィスが見つからなかった方はこちらから
リクエストをお送りください。
希望の条件からおすすめの居抜きオフィスをご紹介します。
居抜き物件としてINUKIT!に登録しておくと、原状回復費用をグッと抑えることが可能です。
まだ移転の時期でなくても、早期登録しておけば、移転のタイミングで借り手がすぐに見つかる可能性が高くなります。
ぜひ、あなたのオフィスを居抜き物件として登録してください!
物件に関するご質問はお気軽にご相談ください。
平日9:00~18:00