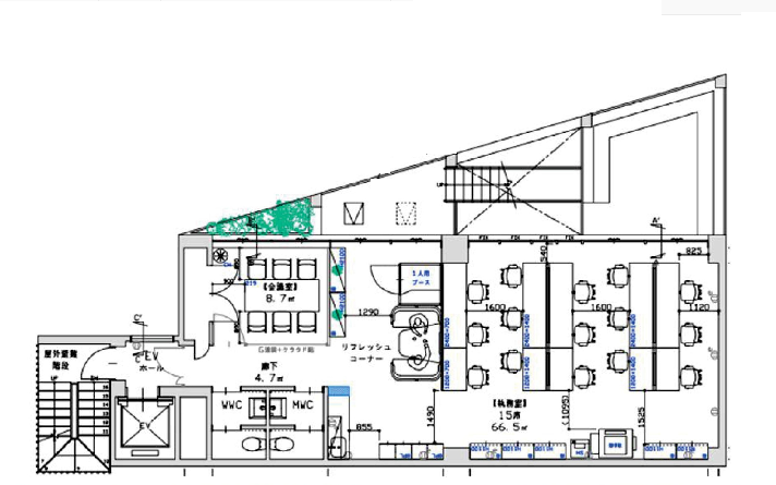
こちらのセットアップオフィスは6名用会議室、テレカンブース2カ所、カウンターテーブルの造作が付いており、初期費用が抑えられます。また、フロア専有のテラスが付いており、休憩等で利用し、リフレッシュができそうです。ロケーションは最寄り駅より徒歩1分で、オフィス街の為周辺環境も良好で使い勝手が良さそうです。近くに飲食店もございますので、ランチにも困りません。外観はホワイトで各フロアにテラスが付いていて、木のぬくもりと緑に癒されます。また、自然換気、非接触キー、自動水栓トイレ等も設置してあり、感染症対策もばっちりです。



お好みの居抜きオフィスが見つからなかった方はこちらから
リクエストをお送りください。
希望の条件からおすすめの居抜きオフィスをご紹介します。
居抜き物件としてINUKIT!に登録しておくと、原状回復費用をグッと抑えることが可能です。
まだ移転の時期でなくても、早期登録しておけば、移転のタイミングで借り手がすぐに見つかる可能性が高くなります。
ぜひ、あなたのオフィスを居抜き物件として登録してください!
物件に関するご質問はお気軽にご相談ください。
平日9:00~18:00