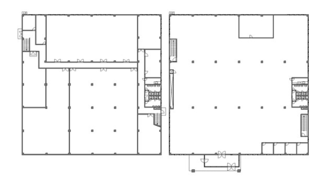
こちらの物件は車移動される企業様必見の居抜きオフィスです!駐車場が70台分ついており、来客時にも大変便利にご利用いただけます。貸室内は広々としており、レイアウトが自由にできる点も魅力的なポイントです。お手洗いは各階に男女別で設置されております。会議室等の区切られた個室が複数あり、社内外の会議やミーティングに最適です!近くに高速道路のインターチェンジもございますので、遠方に行くことのある企業様にもおすすめの物件です。




お好みの居抜きオフィスが見つからなかった方はこちらから
リクエストをお送りください。
希望の条件からおすすめの居抜きオフィスをご紹介します。
居抜き物件としてINUKIT!に登録しておくと、原状回復費用をグッと抑えることが可能です。
まだ移転の時期でなくても、早期登録しておけば、移転のタイミングで借り手がすぐに見つかる可能性が高くなります。
ぜひ、あなたのオフィスを居抜き物件として登録してください!
物件に関するご質問はお気軽にご相談ください。
平日9:00~18:00