【本郷エリア】知的で落ち着いた環境を求める方に最適な居抜きオフィス

内装写真
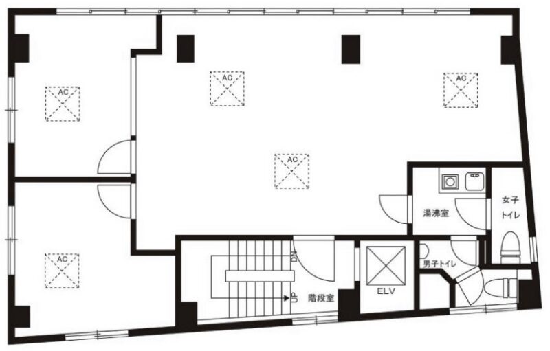
間取り図
地図
 
 
閲覧には会員登録が必要です
無料の会員登録ですぐにご覧になれます
エリア
東京都文京区
最寄り駅
都営大江戸線 本郷三丁目駅徒歩3分
丸ノ内線 本郷三丁目駅徒歩5分
都営三田線 春日駅徒歩11分
都営大江戸線 春日駅徒歩11分
千代田線 湯島駅徒歩12分
中央線 御茶ノ水駅徒歩14分
総武本線 御茶ノ水駅徒歩14分
坪数帯
30~40坪

物件説明

東京都文京区に位置する居抜きオフィスです。日本最高学府である東京大学の近くにあり、学問の薫り高い環境が特徴です。このエリアは災害にも強く、安心して事業を展開できる魅力的な立地です。歴史とともに栄え続けるこのエリアは、緑豊かな自然と都市の便利さが融合しており、閑静な雰囲気が漂いながらも活気ある町の姿を感じられます。知的で落ち着いた環境を求める方に最適なオフィス物件です。

物件詳細情報

物件NoA-004772
住所東京都文京区
坪数帯30~40坪
推奨人数10~20人
募集期間募集終了
坪単価-
竣工年-
賃料-
共益費-
敷金-
会員限定で物件詳細を公開中
ログイン 新規会員登録

設備・条件

物件リクエスト

お好みの居抜きオフィスが見つからなかった方はこちらから
リクエストをお送りください。
希望の条件からおすすめの居抜きオフィスをご紹介します。

居抜きオフィスを検索

該当件数

移転する予定がなくてもOK 今のオフィスを物件登録しませんか?

居抜き物件としてINUKIT!に登録しておくと、原状回復費用をグッと抑えることが可能です。
まだ移転の時期でなくても、早期登録しておけば、移転のタイミングで借り手がすぐに見つかる可能性が高くなります。
ぜひ、あなたのオフィスを居抜き物件として登録してください!

CONTACT

物件に関するご質問はお気軽にご相談ください。

お電話でのお問い合わせはこちら
0120-997-260

平日9:00~18:00

メールでのお問い合わせはこちら
お問い合わせフォーム