プロロジスパーク東京大田 4階 635.71坪の空室情報
プロロジスパーク東京大田 4階 635.71坪
(ビルコード:68026)
賃貸条件
| 賃料 |
総額5,434,221円 (坪単価8,548円) |
| 共益費 |
賃料に含む |
| 合計賃料 |
総額5,434,221円 |
| 預託金 |
賃料の6ヶ月分
(総額32,605,326円)
|
| 入居可能日 |
即日 |
物件概要
| 物件名 |
プロロジスパーク東京大田 (ビルコード:68026) |
| 構造 |
鉄骨鉄筋コンクリート造 |
| 規模 |
地上7階建 |
| 竣工 |
2005年09月 (新耐震基準ビル) |
| 募集階数 |
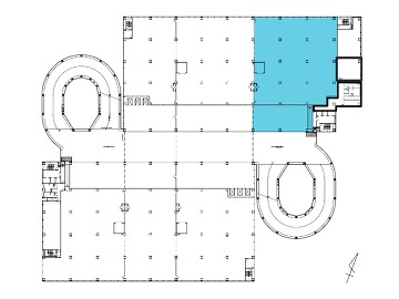
4階 |
| 面積 |
635.71坪 |
| 所在地 |
|
| 交通・アクセス |
|
| 備考 |
|
| 最終確認日 |
2026/02/09
|
設備
周辺地図
物件が表示サポートの外に存在している場合に、
最寄りの表示サポートの画像が表示されています。
他フロアの空き情報
| 階数 |
坪数 |
賃料(共益費込)/坪 |
入居可能日 |
間取り図 |
お気に入り |
| 3階 |
996.41坪 |
相談 |
即日 |
 |
|
| 3階 |
530.48坪 |
相談 |
即日 |
 |
|
| 3階 |
1549.58坪 |
相談 |
即日 |
 |
|
| 4階 |
563.95坪 |
9,636円/坪 |
即日 |
 |
|
賃料・共益費・合計賃料には別途消費税がかかります。
募集状況は常時変動しているため、お問い合わせを頂いた時点でご紹介できない場合がございます。
フロアによって設備に違いがある場合がございます。
フロア賃料・ビル設備を含め賃貸借条件は貸主の事情により変更されている場合がございます。予めご了承下さい。