


| 賃料 | 総額629,875円 (坪単価12,500円) |
|---|---|
| 共益費 | 総額50,000円 (坪単価992円) |
| 合計賃料 | 総額679,875円 |
| 預託金 | 賃料の3ヶ月分 (総額1,889,625円) |
| 入居可能日 | 2026年04月 |
| 物件名 | フサカ (ビルコード:87388) |
|---|---|
| 構造 | 鉄筋コンクリート造 |
| 規模 | 地上7階建 |
| エレベーター | 1基 |
| 竣工 | 1969年10月 |
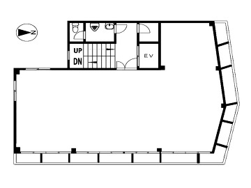
| 募集階数 | 3階 |
| 面積 | 50.39坪 |
| 所在地 | |
| 交通・アクセス |
|
| 備考 | |
| 最終確認日 | 2026/03/05 |
天高 -
賃料・共益費・合計賃料には別途消費税がかかります。
募集状況は常時変動しているため、お問い合わせを頂いた時点でご紹介できない場合がございます。
フロアによって設備に違いがある場合がございます。
フロア賃料・ビル設備を含め賃貸借条件は貸主の事情により変更されている場合がございます。予めご了承下さい。
2駅利用可能、ワンフロアにゆとりのある広さの物件です。教室や習い事、塾等にご利用いただけます。