


| 賃料 | 総額590,000円 (坪単価19,879円) |
|---|---|
| 共益費 | 総額25,000円 (坪単価842円) |
| 合計賃料 | 総額615,000円 |
| 預託金 | 賃料の4ヶ月分 (総額2,360,000円) |
| 入居可能日 | 2026年05月 |
| 物件名 | エクセルシオ原宿 (ビルコード:138193) |
|---|---|
| 構造 | 鉄骨造 |
| 規模 | 地下1階地上4階建 |
| エレベーター | 1基 |
| 竣工 | 1989年01月 (新耐震基準ビル) |
| 募集階数 | 3階 |
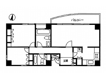
| 面積 | 29.68坪 |
| 所在地 | |
| 交通・アクセス |
|
| 備考 | |
| 最終確認日 | 2026/03/13 |
天高 -
賃料・共益費・合計賃料には別途消費税がかかります。
募集状況は常時変動しているため、お問い合わせを頂いた時点でご紹介できない場合がございます。
フロアによって設備に違いがある場合がございます。
フロア賃料・ビル設備を含め賃貸借条件は貸主の事情により変更されている場合がございます。予めご了承下さい。