

| 物件名 | 咲久良 (ビルコード:67289) |
|---|---|
| 構造 | 鉄骨鉄筋コンクリート造 |
| 規模 | 地上7階建 |
| エレベーター | 1基 |
| 竣工 | 1989年06月 (新耐震基準ビル) |
| 所在地 | |
| 交通・アクセス |
|
| 最終確認日 | 2026/02/09 |
| 階数 | 坪数 | 賃料(共益費込)/坪 | 入居可能日 | 間取り図 | ★ | 選択 |
|---|---|---|---|---|---|---|
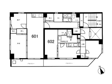
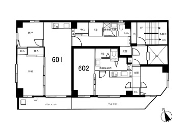
| 6階 | 18.90坪 | 17,253円/坪 | 相談 | ![]() |
||
| 6階 | 13.01坪 | 18,761円/坪 | 相談 | ![]() |
||
| B1-1階 | 51.05坪 | 15,369円/坪 | 相談 | ![]() |
賃料・共益費・合計賃料には別途消費税がかかります。
募集状況は常時変動しているため、お問い合わせを頂いた時点でご紹介できない場合がございます。
フロアによって設備に違いがある場合がございます。
フロア賃料・ビル設備を含め賃貸借条件は貸主の事情により変更されている場合がございます。予めご了承下さい。