

| 物件名 | 大宮サウスゲートフロント (ビルコード:204213) |
|---|---|
| 構造 | 鉄骨造 |
| 規模 | 地下1階地上12階建 |
| エレベーター | 5基 |
| 竣工 | 2025年12月 (新耐震基準ビル) |
| 所在地 | |
| 交通・アクセス | |
| 最終確認日 | 2026/04/23 |
賃料・共益費・合計賃料には別途消費税がかかります。
募集状況は常時変動しているため、お問い合わせを頂いた時点でご紹介できない場合がございます。
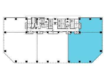
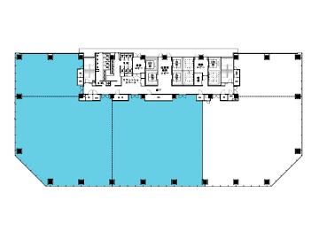
フロアによって設備に違いがある場合がございます。
フロア賃料・ビル設備を含め賃貸借条件は貸主の事情により変更されている場合がございます。予めご了承下さい。
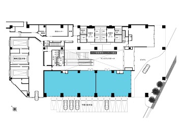
最寄り駅より徒歩7分でのアクセスが可能です。ガラス張りの外観で、スタイリッシュな印象のビルです。開放感のある屋上や食堂があり、ワークスペースだけでなく、休憩時も快適に過ごすことができるオフィスビルとなっています。