

| 物件名 | 貸店舗 (ビルコード:198959) |
|---|---|
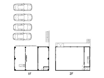
| 構造 | 鉄骨造 |
| 規模 | 地上2階建 |
| エレベーター | なし |
| 竣工 | |
| 所在地 | |
| 交通・アクセス |
|
| 最終確認日 | 2026/02/12 |
賃料・共益費・合計賃料には別途消費税がかかります。
募集状況は常時変動しているため、お問い合わせを頂いた時点でご紹介できない場合がございます。
フロアによって設備に違いがある場合がございます。
フロア賃料・ビル設備を含め賃貸借条件は貸主の事情により変更されている場合がございます。予めご了承下さい。