

| 物件名 | 東京フロントテラス (ビルコード:132458) |
|---|---|
| 構造 | 鉄骨鉄筋コンクリート造 |
| 規模 | 地下2階地上25階建 |
| エレベーター | 9基 |
| 竣工 | 1992年06月 (新耐震基準ビル) |
| 所在地 | |
| 交通・アクセス | |
| 最終確認日 | 2026/04/28 |
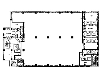
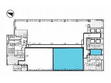
| 階数 | 坪数 | 賃料(共益費込)/坪 | 入居可能日 | 間取り図 | ★ | 選択 |
|---|---|---|---|---|---|---|
| 10階 | 130.91坪 | 相談 | 即日 | ![]() |
||
| 11階 | 289.24坪 | 相談 | 2027年04月 | ![]() |
||
| 12階 | 82.21坪 | 相談 | 2026年10月 | ![]() |
||
| 15階 | 131.93坪 | 相談 | 2026年07月 | ![]() |
賃料・共益費・合計賃料には別途消費税がかかります。
募集状況は常時変動しているため、お問い合わせを頂いた時点でご紹介できない場合がございます。
フロアによって設備に違いがある場合がございます。
フロア賃料・ビル設備を含め賃貸借条件は貸主の事情により変更されている場合がございます。予めご了承下さい。
直結する東京モノレール天王洲アイル駅と、りんかい線天王洲アイル駅は徒歩5分です。羽田空港へのアクセスの良さ、シーサイドの眺望も魅力です。非常用発電機の装備があり、1・2階のエントランスホールは、2層吹き抜けで開放感があります。