
[ エリア ] 学芸大学エリア の賃貸オフィス検索結果

並び替え
THE VERTEX 碑文谷
ビルコード:217093
| 住所 | 東京都目黒区目黒本町4-20-9 |
|---|---|
| 交通 | 東急目黒線:西小山駅:16分 東急目黒線:洗足駅:18分 東急東横線:学芸大学駅:20分 |
| 階数 | 地下1階地上5階建 |
| 竣工 | 2026年02月 (新耐震基準ビル) |
開興マンション
ビルコード:217376
| 住所 | 東京都目黒区目黒本町6-5-5 |
|---|---|
| 交通 | 東急目黒線:西小山駅:5分 東急目黒線:武蔵小山駅:13分 東急大井町線:北千束駅:23分 東急池上線:旗の台駅:23分 東急東横線:学芸大学駅:27分 |
| 階数 | 地上3階建 |
| 竣工 | 1983年03月 (新耐震基準ビル) |
-

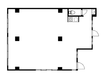
1階13.78坪
7,257円/坪
パルム
ビルコード:154108
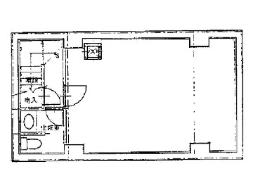
-

1階9.20坪
39,130円/坪
学大高架下
ビルコード:203502
-

2階53.96坪
賃料(共益費)相談
学大高架下16-3ブロック
ビルコード:214235
フォレノワール武蔵小山
ビルコード:215936
-

1階27.44坪
18,767円/坪
フラットフォー
ビルコード:195346
| 住所 | 東京都目黒区鷹番1-1-5 |
|---|---|
| 交通 | 東急東横線:学芸大学駅:10分 東急東横線:祐天寺駅:19分 東急目黒線:武蔵小山駅:21分 |
| 階数 | 地下1階地上5階建 |
| 竣工 | 2001年01月 (新耐震基準ビル) |
| エレベーター1基 |
-

5階45.13坪
20,000円/坪
THE GRANDUO GAKUGEIDAIGAKU
ビルコード:216753
ハイム碑文谷
ビルコード:3562
| 住所 | 東京都目黒区碑文谷5-12-18 |
|---|---|
| 交通 | 東急東横線:学芸大学駅:8分 東急東横線:都立大学駅:13分 東急田園都市線:駒沢大学駅:29分 |
| 階数 | 地上3階建 |
| 竣工 | 1988年03月 (新耐震基準ビル) |
-

1階22.98坪
賃料(共益費)相談
AG学芸大学
ビルコード:216588
賃料・共益費・合計賃料には別途消費税がかかります。
募集状況は常時変動しているため、お問い合わせを頂いた時点でご紹介できない場合がございます。
フロアによって設備に違いがある場合がございます。
フロア賃料・ビル設備を含め賃貸借条件は貸主の事情により変更されている場合がございます。予めご了承下さい。









































