


| 賃料 | 相談 |
|---|---|
| 共益費 | 相談 |
| 合計賃料 | 相談 |
| 預託金 | 相談 |
| 入居可能日 | 2026年02月 |
| 物件名 | リードシー恵比寿 (ビルコード:73784) |
|---|---|
| 構造 | 鉄骨鉄筋コンクリート造 |
| 規模 | 地下1階地上4階建 |
| エレベーター | 1基 |
| 竣工 | 1993年08月 (新耐震基準ビル) |
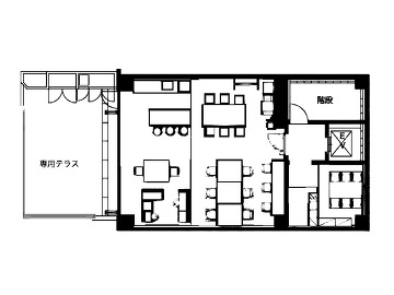
| 募集階数 | B1階 |
| 面積 | 28.29坪 |
| 所在地 | |
| 交通・アクセス | |
| 備考 | |
| 最終確認日 | 2025/12/05 |
天高 -
賃料・共益費・合計賃料には別途消費税がかかります。
募集状況は常時変動しているため、お問い合わせを頂いた時点でご紹介できない場合がございます。
フロアによって設備に違いがある場合がございます。
フロア賃料・ビル設備を含め賃貸借条件は貸主の事情により変更されている場合がございます。予めご了承下さい。
日比谷線『恵比寿』駅から徒歩4分の駅近物件です。 2020年に、リノベーションされたオシャレな物件なのが特徴です。