


| 賃料 | 総額250,000円 (坪単価12,913円) |
|---|---|
| 共益費 | 賃料に含む |
| 合計賃料 | 総額250,000円 |
| 預託金 | 賃料の4ヶ月分 (総額1,000,000円) |
| 入居可能日 | 即日 |
| 物件名 | TTD PLAZA (ビルコード:22406) |
|---|---|
| 構造 | 鉄骨鉄筋コンクリート造 |
| 規模 | 地下1階地上9階建 |
| エレベーター | 3基 |
| 竣工 | 1992年11月 (新耐震基準ビル) |
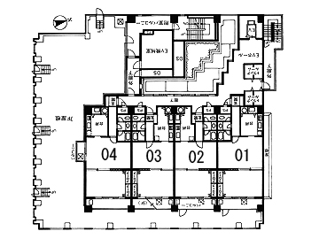
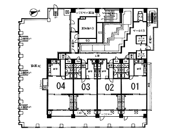
| 募集階数 | 8階 |
| 面積 | 19.36坪 |
| 所在地 | |
| 交通・アクセス |
|
| 備考 | |
| 最終確認日 | 2026/04/10 |
天高2600mm
賃料・共益費・合計賃料には別途消費税がかかります。
募集状況は常時変動しているため、お問い合わせを頂いた時点でご紹介できない場合がございます。
フロアによって設備に違いがある場合がございます。
フロア賃料・ビル設備を含め賃貸借条件は貸主の事情により変更されている場合がございます。予めご了承下さい。