


| 賃料 | 相談 |
|---|---|
| 共益費 | 相談 |
| 合計賃料 | 相談 |
| 預託金 | 相談 |
| 入居可能日 | 即日 |
| 物件名 | クロスガーデン多摩 (ビルコード:169938) |
|---|---|
| 構造 | |
| 規模 | 地上3階建 |
| エレベーター | 5基 |
| 竣工 | 2008年04月 (新耐震基準ビル) |
| 募集階数 | 3階 |
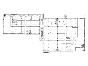
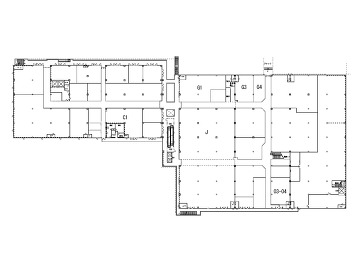
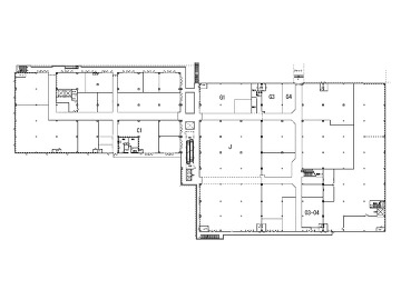
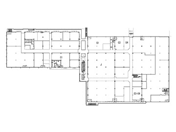
| 面積 | 96.50坪 |
| 所在地 |
|
| 交通・アクセス | |
| 備考 | |
| 最終確認日 | 2025/10/28 |
天高 -
賃料・共益費・合計賃料には別途消費税がかかります。
募集状況は常時変動しているため、お問い合わせを頂いた時点でご紹介できない場合がございます。
フロアによって設備に違いがある場合がございます。
フロア賃料・ビル設備を含め賃貸借条件は貸主の事情により変更されている場合がございます。予めご了承下さい。