飯田橋ハイタウンビル 7階 9.68坪の空室情報
飯田橋ハイタウン 7階 9.68坪
(ビルコード:43735)
賃貸条件
| 賃料 |
総額110,000円 (坪単価11,364円) |
| 共益費 |
賃料に含む |
| 合計賃料 |
総額110,000円 |
| 預託金 |
賃料の2ヶ月分
(総額220,000円)
|
| 入居可能日 |
即日 |
物件概要
| 物件名 |
飯田橋ハイタウン (ビルコード:43735) |
| 構造 |
鉄骨鉄筋コンクリート造 |
| 規模 |
地下1階地上11階建 |
| エレベーター |
3基 |
| 竣工 |
1978年08月 |
| 募集階数 |
7階 |
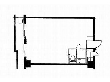
| 面積 |
9.68坪 |
| 所在地 |
|
| 交通・アクセス |
|
| 備考 |
|
| 最終確認日 |
2025/10/27
|
設備
周辺地図
物件が表示サポートの外に存在している場合に、
最寄りの表示サポートの画像が表示されています。
他フロアの空き情報
| 階数 |
坪数 |
賃料(共益費込)/坪 |
入居可能日 |
間取り図 |
お気に入り |
| 2階 |
6.29坪 |
13,418円/坪 |
即日 |
 |
|
| 3階 |
14.75坪 |
14,474円/坪 |
即日 |
 |
|
| 8階 |
13.06坪 |
14,502円/坪 |
即日 |
 |
|
賃料・共益費・合計賃料には別途消費税がかかります。
募集状況は常時変動しているため、お問い合わせを頂いた時点でご紹介できない場合がございます。
フロアによって設備に違いがある場合がございます。
フロア賃料・ビル設備を含め賃貸借条件は貸主の事情により変更されている場合がございます。予めご了承下さい。