松本ビル(埼玉県さいたま市見沼区東大宮5-36-4)の賃貸オフィス・貸事務所・賃貸事務所

松本
  • 松本

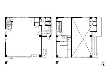
基準階図面

間取り

松本の空き室情報
(ビルコード:214692)

物件概要

物件名 松本 (ビルコード:214692)
構造 鉄骨造
規模 地上2階建
エレベーター なし
竣工 1979年05月
所在地
交通・アクセス
最終確認日 2025/10/08

設備

  • 個別空間
  • セントラル空調なし
  • OAフロア
  • トイレ男女別
  • 24時間使用可
  • 駐車場有
  • なし
  • 有人警備なし
  • 機械警備
  • 光ファイバー

フロアの空き情報

チェックした物件をお問い合わせ

階数 坪数 賃料(共益費込)/坪 入居可能日 間取り図 選択
1-2階 36.44坪 7,409円/坪 相談 間取り図
お気に入り
周辺地図

物件が表示サポートの外に存在している場合に、
最寄りの表示サポートの画像が表示されています。

賃料・共益費・合計賃料には別途消費税がかかります。
募集状況は常時変動しているため、お問い合わせを頂いた時点でご紹介できない場合がございます。
フロアによって設備に違いがある場合がございます。
フロア賃料・ビル設備を含め賃貸借条件は貸主の事情により変更されている場合がございます。予めご了承下さい。

無料相談 0120-620-213
  • 物件リクエスト
  • お問い合わせ資料請求