


| 賃料 | 相談 |
|---|---|
| 共益費 | 相談 |
| 合計賃料 | 相談 |
| 預託金 | 相談 |
| 入居可能日 | 2026年05月 |
| 物件名 | 汐留AZ(東新橋2丁目石井) (ビルコード:38137) |
|---|---|
| 構造 | 鉄骨鉄筋コンクリート造 |
| 規模 | 地下1階地上8階建 |
| エレベーター | 1基 |
| 竣工 | 1985年04月 (新耐震基準ビル) |
| 募集階数 | 7階 |
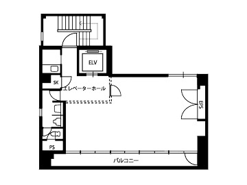
| 面積 | 26.54坪 |
| 所在地 | |
| 交通・アクセス |
|
| 備考 | |
| 最終確認日 | 2025/12/17 |
天高2400mm
賃料・共益費・合計賃料には別途消費税がかかります。
募集状況は常時変動しているため、お問い合わせを頂いた時点でご紹介できない場合がございます。
フロアによって設備に違いがある場合がございます。
フロア賃料・ビル設備を含め賃貸借条件は貸主の事情により変更されている場合がございます。予めご了承下さい。
4路線5駅が徒歩圏内にあり、大変交通アクセスに恵まれた立地にあるビルです。ワンフロア専有の室内は整型のフロア設計で無駄のないレイアウトが可能となっています。